尊敬的电梯代理商朋友们:
7月1日将实行电梯检验新规,关于电梯门撞击的强度检验,电梯轿厢防意外移动,和防止轿门在非门区意外开门,请将所有6月20日之前已签定合同需到当地技术监督局备案,备案后6月20日之前的还是按照旧标准检验,6月20日之前必须备案完毕否则将按新检验标准规定进行检验验收!
请互相转告!谢谢!没有备案到时候无法验收 ......
各省、自治区、直辖市质量技术监督局(市场监督管理部门),各有关单位:
为做好GB7588-2003《电梯制造与安装安全规范》第1号修改单(以下简称新标准)实施工作,现提出如下意见:
一、供需双方于新标准批准发布日期2015年7月16日(不含)之前首次签订供货、安装正式合同,或者已经通过公开招投标确定中标及供货的,可以按照原GB7588-2003《电梯制造与安装安全规范》(以下简称原版标准)供应电梯产品。
二、供需双方于2015年7月16日(含)之后签订电梯供货、安装正式合同的,如合同中约定交货期(或实际交货日期)在新标准实施日期2016年7月1日(不含)之前的,可以按照合同约定的标准版本供应电梯产品;如合同没有约定执行标准的版本,也可以按照原版标准供应电梯产品。如合同约定的交货期(或实际交货日期)在2016年7月1日(含)之后的,必须按照新标准供应电梯产品。
三、符合以上要求按照原版标准供应电梯产品的项目,可能在2016年7月1日(含)之后实施监督检验的,由电梯制造单位或者其委托的安装单位填写《执行原版标准合同项目情况备案表》(见附件),于2016年6月20日前,一次性报送电梯安装地负责特种设备使用登记的质监部门。各地质监部门可对备案的合同项目进行抽查确认,发现不符合规定的予以纠正。
执行中遇到的问题,请及时报告我局。
附件:执行原版标准合同项目情况备案表 质检总局特种设备局
2016年4月29日
2015年第23号
关于批准发布GB 7588-2003《电梯制造与安装安全规范》国家标准第1号修改单的公告
国家标准化管理委员会批准GB 7588-2003《电梯制造与安装安全规范》国家标准第1号修改单,自2016年7月1日起开始实施,现予以公布(见附件)。
附件
GB 7588-2003《电梯制造与安装安全规范》
国家标准第1号修改单
2 引用标准
增加:
GB/T 24478-2009 电梯曳引机
3.18 轿厢意外移动 unintended car movement
在开锁区域内且开门状态下,轿厢无指令离开层站的移动,不包含装卸载引起的移动。
7.2.3.1 层门在锁住位置时,所有层门及其门锁应有这样的机械强度:
a)用300 N的静力垂直作用于门扇或门框的任何一个面上的任何位置,且均匀地分布在5 cm2的圆形或方形面积上时,应:
1)永久变形不大于1 mm;
2)弹性变形不大于15 mm;
试验后,门的安全功能不受影响。
b)用1000 N的静力从层站方向垂直作用于门扇或门框上的任何位置,且均匀地分布在100 cm2的圆形或方形面积上时,应没有影响功能和安全的明显的永久变形[见7.1(最大10 mm的间隙)和7.7.3.1]。
注:对于a)和b),为避免损坏层门的表面,用于提供测试力的测试装置的表面可使用软质材料。
7.2.3.3 层门/门框上的玻璃应使用夹层玻璃。
7.2.3.7 固定在门扇上的导向装置失效时,水平滑动层门应有将门扇保持在工作位置上的装置。具有这些装置的完整的层门组件应能承受符合7.2.3.8 a)要求的摆锤冲击试验,撞击点按表7和图7在正常导向装置最可能失效条件下确定。
注:保持装置可理解为阻止门扇脱离其导向的机械装置,可以是一个附加的部件也可以是门扇或悬挂装置的一部分。
7.2.3.8 对于带玻璃面板的层门和宽度大于150 mm的层门侧门框,还应满足下列要求(见图7):
注:门框侧边用来封闭井道的附加面板视为侧门框。
a)从层站侧,用软摆锤冲击装置按附录J,从面板或门框的宽度方向的中部以符合表7所规定的撞击点,撞击面板或门框时:
1)可以有永久变形;
2)层门装置不应丧失完整性,并保持在原有位置,且凸进井道后的间隙不应大于0.12 m;
3)在摆锤试验后,不要求层门能够运行;
4)对于玻璃部分,应无裂纹;
b)从层站侧,用硬摆锤冲击装置按附录J,从面板或玻璃面板的宽度方向的中部以符合表7所规定的撞击点,撞击大于7.6.2 a)所述的玻璃面板时:
1)无裂纹;
2)除直径不大于2 mm的剥落外,面板表面无其他损坏。
注:在多个玻璃面板的情况下,考虑最薄弱的面板。
表7 撞击点
|
摆锤冲击试验 |
软摆锤 |
硬摆锤 |
||
|
跌落高度 |
800 mm |
800 mm |
500 mm |
500 mm |
|
撞击点高度 |
(1.0 ± 0.1) m |
玻璃中点 |
(1.0 ± 0.1)m |
玻璃中点 |
|
无玻璃面板的层门 [图7a)] |
× |
|
|
|
|
具有较小玻璃面板的层门 [图7b)] |
× |
× |
|
× |
|
具有多个玻璃面板的层门[图7c](在最不利的玻璃面板上测试) |
× |
× |
|
× |
|
具有较大玻璃面板或全玻璃的层门 [图7d)] |
× (撞击在玻璃上) |
|
× (撞击在玻璃上) |
|
|
具有位于1 m高度处开始或结束的玻璃面板的层门[图7e)] |
× |
× |
|
× |
|
具有位于1 m高度处开始或结束的玻璃面板的层门[图7f)] |
× (撞击在玻璃上) |
|
× (撞击在玻璃上) |
|
|
大于150 mm的侧门框 [图7g)] |
× |
|
|
|
|
具有视窗的门 (7.6. 2) |
× |
× |
|
|
|
注:×表示考虑该项试验 |
||||
注1:图7e)和图7f)两者选一;
注2:选择最薄弱的玻璃面板进行试验。如果无法确定最薄弱的面板,均进行试验;
注3:对于定义为1 m的撞击点,误差为±0.10 m。
图中:
● 软摆锤冲击试验的撞击点
○ 硬摆锤冲击试验的撞击点
图7 门扇的摆锤冲击试验 — 撞击点
8.11 轿门的开启
8.11.1 如果由于任何原因电梯停在开锁区域(见7.7.1),应能在下列位置用不超过300 N的力,手动打开轿门和层门:
a)轿厢所在层站,用三角钥匙开锁或通过轿门使层门开锁后;
b)轿厢内。
8.11.2 为了限制轿厢内人员开启轿门,应提供措施使:
a)轿厢运行时,开启轿门的力应大于50 N;和
b)轿厢在7.7.1中定义的区域之外时,在开门限制装置处施加1000 N的力,轿门开启不能超过50 mm。
8.11.3 至少当轿厢停在9.11.5规定的距离内时,打开对应的层门后,能够不用工具从层站打开轿门,除非用三角形钥匙或永久性设置在现场的工具。
本要求也适用于具有符合8.9.3的轿门锁的轿门。
8.11.4 对于符合11.2.1 c)的电梯,应仅当轿厢位于开锁区域内时才能从轿厢内打开轿门。
9.11轿厢意外移动保护装置
9.11.1 在层门未被锁住且轿门未关闭的情况下,由于轿厢安全运行所依赖的驱动主机或驱动控制系统的任何单一元件失效引起轿厢离开层站的意外移动,电梯应具有防止该移动或使移动停止的装置。悬挂绳、链条和曳引轮、滚筒、链轮的失效除外,曳引轮的失效包含曳引能力的突然丧失。
不具有符合14.2.1.2的开门情况下的平层、再平层和预备操作的电梯,并且其制停部件是符合9.11.3和9.11.4的驱动主机制动器,不需要检测轿厢的意外移动。
轿厢意外移动制停时由于曳引条件造成的任何滑动,均应在计算和/或验证制停距离时予以考虑。
9.11.2 该装置应能够检测到轿厢的意外移动,并应制停轿厢且使其保持停止状态。
9.11.3 在没有电梯正常运行时控制速度或减速、制停轿厢或保持停止状态的部件参与的情况下,该装置应能达到规定的要求,除非这些部件存在内部的冗余且自监测正常工作。
注:符合12.4.2要求的制动器认为是存在内部冗余。
在使用驱动主机制动器的情况下,自监测包括对机械装置正确提起(或释放)的验证和(或)对制动力的验证。对于采用对机械装置正确提起(或释放)验证和对制动力验证的,制动力自监测的周期不应大于15天;对于仅采用对机械装置正确提起(或释放)验证的,则在定期维护保养时应检测制动力;对于仅采用对制动力验证的,则制动力自监测周期不应大于24小时。
如果检测到失效,应关闭轿门和层门,并防止电梯的正常启动。
对于自监测,应进行型式试验。
9.11.4 该装置的制停部件应作用在:
a)轿厢;或
b)对重;或
c)钢丝绳系统(悬挂绳或补偿绳);或
d)曳引轮;或
e)只有两个支撑的曳引轮轴上。
该装置的制停部件,或保持轿厢停止的装置可与用于下列功能的装置共用:
-- 下行超速保护;
-- 上行超速保护(9.10)。
该装置用于上行和下行方向的制停部件可以不同。
9.11.5 该装置应在下列距离内制停轿厢(见图8):
a)与检测到轿厢意外移动的层站的距离不大于1.20 m;
b)层门地坎与轿厢护脚板最低部分之间的垂直距离不大于0.20 m;
c)按5.2.1.2设置井道围壁时,轿厢地坎与面对轿厢入口的井道壁最低部件之间的距离不大于0.20 m;
d)轿厢地坎与层门门楣之间或层门地坎与轿厢门楣之间的垂直距离不小于1.00 m。
轿厢载有不超过100%额定载重量的任何载荷,在平层位置从静止开始移动的情况下,均应满足上述值。
图中:
①——轿厢
②——井道
③——层站
④——轿厢护脚板
⑤——轿厢入口
图8 轿厢意外移动 — 向下和向上移动
9.11.6 在制停过程中,该装置的制停部件不应使轿厢减速度超过:
-- 空轿厢向上意外移动时为1 gn,
-- 向下意外移动时为自由坠落保护装置动作时允许的减速度。
9.11.7 最迟在轿厢离开开锁区域(7.7.1)时,应由符合14.1.2的电气安全装置检测到轿厢的意外移动。
9.11.8 该装置动作时,应使符合14.1.2要求的电气安全装置动作。
注:可与9.11.7中的开关装置共用。
9.11.9 当该装置被触发或当自监测显示该装置的制停部件失效时,应由称职人员使其释放或使电梯复位。
9.11.10 释放该装置应不需要接近轿厢、对重或平衡重。
9.11.11 释放后,该装置应处于工作状态。
9.11.12 如果该装置需要外部能量来驱动,当能量不足时应使电梯停止并保持在停止状态。此要求不适用于带导向的压缩弹簧。
9.11.13 轿厢意外移动保护装置是安全部件,应按F8的要求进行型式试验。
12.12 轿厢的平层准确度应为±10 mm。平层保持精度应为±20 mm,如果装卸载时超出±20 mm,应校正到±10 mm以内。
15.17 轿厢意外移动保护装置的完整系统或子系统(见F8.1)上,应设置铭牌,标明:
a)轿厢意外移动保护装置制造商名称;
b)型式试验标志及试验单位;
c)轿厢意外移动保护装置型号。
在16.1.3中增加:
h) 轿厢意外移动保护装置。
在附录A表A1最后增加以下两行:
|
章条 |
所检查的装置 |
|
9.11.7 |
检查开门状态下轿厢的意外移动 |
|
9.11.8 |
检查开门状态下轿厢意外移动保护装置的动作 |
在D2的最后增加:
o) 轿厢意外移动保护装置(见9.11)
交付使用前试验的目的是检查检测装置和制停部件。
试验时应仅使用9.11定义的装置的制停部件制停电梯。
试验应:
——包括验证该装置的制停部件按型式试验所述的方式触发。
——轿厢以预定速度(例如:型式试验所确定的速度,如检修速度等),在井道上部空载上行(例如:从一个层站到上端站),以及在井道下部满载下行(例如:从一个层站到下端站);
按型式试验所述的试验,应验证轿厢意外移动的距离满足9.11.5规定。
如果该装置需要自监测(见9.11.3),应检查其功能。
注:如果该装置的制停部件包括层站的部件,有必要在每个涉及的层站重复该试验。
在E2b)的最后增加一项:
轿厢意外移动保护装置。
F8 轿厢意外移动保护装置
F8.1 通则
轿厢意外移动保护装置应作为一个完整的系统进行型式试验,或者对其检测、操纵装置和制停子系统提交单独的型式试验。组成完整系统的每一个子系统的型式试验,应定义接口条件和相关参数。
申请人应说明应用于该系统或子系统的主要参数:
— 最小和最大质量;
— 最小和最大力或力矩(如果适用);
— 检测装置、控制电路和制停部件各自的响应时间;
— 所预期的减速之前的最高速度(参见注1);
— 与检测装置所安装的层站之间的距离;
— 试验速度(参见注2);
— 设计的温度和湿度的限值,以及申请人和试验单位所达成的任何其他相关信息。
注1:举例说明:曳引式电梯,如果自然加速度为1.5 m/s2²,并且没有来自于电动机的任何力矩,则可达到的最大速度为2m/s。这是基于刚开始减速时达到的速度,即:经过轿厢意外移动保护装置、控制电路和制停部件的响应时间,由1.5 m/s2自然加速度产生的结果,假设意外移动检测装置在轿厢到达门区极限位置时动作。
对于曳引式电梯,因内部控制装置引起的电气故障的情况下,假定可达到的加速度不大于2.5m/s2。
注2:试验速度由制造商提供,试验单位使用该速度确定电梯移动距离(验证距离),以便在交付使用前的检验中验证意外移动保护系统的正确动作。该速度可为检修速度,或者由制造商确定并经试验单位认可的其它速度。
申请时,应附下列文件:
a)结构、动作、部件尺寸和公差的详图和装配图;
b)如果必要,与弹性元件相关的载荷图;
c)所用材料的详细信息,该装置所作用的部件类型及其表面条件(拉制、铣削、磨削等)。
F8.2 说明和样品
F8.2.1 申请人应说明该装置的功能。
F8.2.2 申请人应按照与试验单位之间的约定提供测试样品,根据需要包括:完整的轿厢意外移动检测装置、控制电路(执行机构)、制停部件以及任何监测装置(如果有)。
应提供所有试验必须的数套夹紧元件。
按试验单位要求的尺寸提供该装置所作用的部件。
F8.3 试验
F8.3.1 试验方法
依据该装置及其所实现的实际功能,申请人和试验单位共同确定试验方法。
测量应包括:
— 制停距离;
— 平均减速度;
— 检测、触发电路、制停部件和控制电路的响应时间(参见图F2);
— 移动的总距离(加速距离和制停距离之和)。
试验还应包括:
— 轿厢意外移动检测装置的动作;和
— 任何自动监测系统(如果适用)。
图中:
①——在制停部件作用下开始减速的点
②——轿厢意外移动检测和任何控制电路的响应时间
③——触发电路和制停部件的响应时间
图F2 响应时间
F8.3.2 试验程序
应对制停部件进行20 次试验,并且:
— 每个结果均不超出所规定的范围;
— 每个结果均应在平均值的±20 %范围内;
证书应给出平均值。
使用驱动主机制动器作为制停部件时,还应按GB/T 24478-2009 4.2.2.4的要求进行制动器动作试验。
F8.3.2.1 认证用于单一质量或力矩的轿厢意外移动保护装置
试验单位应以空载轿厢的系统质量或力矩进行10 次上行试验;以载有额定载重量轿厢的系统质量或力矩进行10 次下行试验。
在各次试验之间,应允许摩擦件恢复到正常温度。
在试验期间,可使用数套相同的摩擦件。但每套摩擦件应至少能承受5 次试验。
F8.3.2.2 认证用于不同质量或力矩的轿厢意外移动保护装置
试验单位应对所申请的最大值和最小值分别进行一系列试验。
申请人应提供公式或图表,以说明制动力或力矩与给定调整量之间的函数关系,结果用移动距离表示。
试验单位应验证公式或图表的有效性。
F8.3.2.3 轿厢意外移动检测装置的试验程序
应进行10 次试验以验证该装置的动作。所有试验应可靠地验证该装置均正确动作。
F8.3.2.4 自监测装置的试验程序
应进行10 次试验以验证该装置的动作。所有试验应可靠地验证该装置均正确动作。
此外,应验证在危险情况发生前自监测装置检测制停部件冗余失效的能力。
F8.3.3 试验后的检查
试验后:
a)应将制停部件的机械特性与申请人提供的原始值进行比较。在特殊情况下可进行其他分析;
b)应检查确认没有任何断裂、变形或其他变化情况(例如:夹紧元件的裂纹、变形或磨损、摩擦表面的外观);
c)如果有必要,应拍摄夹紧元件和所作用部件的照片,以便作为变形或裂纹的证据。
F8.4 调整值的修正
试验期间,如果得到的数值和申请人期望的值相差20 %以上,则在必要时,征得申请人同意,可在修改调整值后另外进行一系列的试验。
F8.5 试验报告
为了试验的再现性,型式试验时应记录所有细节,例如:
— 申请人和试验单位确定的试验方法;
— 试验方案描述;
— 试验方案中该装置的安装位置;
— 试验次数;
— 测试数据的记录;
— 试验期间的观察报告;
— 试验结果和要求的一致性判断。
F8.6 型式试验证书
证书应包括如下内容:
a)F0.2述及的内容;
b)轿厢意外移动保护系统/子系统的类型和应用;
c)主要参数的限值(由制造商和试验单位约定);
d)用于最终检验的试验速度及相关参数;
e)制停部件所作用部件类型;
f)对于完整系统,检测装置和制停部件的组合;
g) 对于子系统,接口条件。
J2.4 提拉和触发装置
悬挂的摆锤冲击装置通过提拉和触发装置的牵引从被试面板上摆,上摆的高度按J4.2和J4.3的要求。在释放的瞬间触发装置不应对摆锤冲击装置产生附加的冲击。
悬挂钢丝绳应勾挂住摆锤冲击装置而没有任何的扭转,以防止在触发后摆锤冲击装置的旋转。
在触发之前,悬挂钢丝绳与摆锤冲击装置的中心线在一条直线上,应通过一个三角的勾挂装置,在触发位置使摆锤冲击装置的重心与提拉钢丝绳在一条直线上。
J4.3 软摆锤冲击试验用J2.2所述的装置在跌落高度为以下条件下进行:
a) 对于层门面板或门框,跌落高度为800 mm(见图J3);
b) 对于玻璃轿门、玻璃轿壁,跌落高度为700 mm(见图J3);
J4.4 摆锤应撞击在宽度方向为面板的中点,高度方向为面板设计地平面上方(1.0±0.1)m处。对于层门,该高度值见7.2.3.8。
跌落高度是参考点之间的垂直距离(见图J3)。
J4.5 J2.1和J2.2所规定的每个装置对每个撞击点仅进行一次试验。
如果硬摆锤和软摆锤冲击试验都需要做,两种试验应在同一面板上进行,且先做硬摆锤冲击试验。
J5 试验结果解释
J5.1 轿门和轿壁的试验结果能满足标准要求的条件为:
a) 面板未整体损坏;
b) 面板上没有裂纹;
c) 面板上无孔;
d) 面板未脱离导向部件;
e) 导向部件无永久变形;
f) 面板表面无其他损坏,对面板表面有直径不大于2 mm,但无裂纹痕迹的情况还应再做一次成功的软摆锤冲击试验。
J5.2 层门、层门侧门框试验完成后,应按标准要求检查以下内容:
a) 失去完整性;
b) 永久变形;
c) 裂纹或破碎。
J7 例外情况
如果使用了表J1轿壁使用的平板玻璃面板和表J2水平滑动轿门使用的平板玻璃面板,由于他们能满足试验要求,所以无需进行摆锤冲击试验。
表J1 轿壁使用的平板玻璃面板
|
玻璃类型 |
内切圆的直径 |
|
|
最大1m |
最大2m |
|
|
最小厚度 mm |
最小厚度 mm |
|
|
夹层钢化 |
8 (4+0.76+4) |
10 (5+0.76+5) |
|
夹层 |
10 (5+0.76+5) |
12 (6+0.76+6) |
表J2 水平滑动轿门使用的平板玻璃面板
|
玻璃类型 |
最小厚度 mm |
宽度 mm |
自由门的高度 m |
玻璃面板的固定 |
|
夹层钢化 |
16 (8+0.76+8) |
360~720 |
最大2.1 |
上部及下部固定 |
|
夹层 |
16 (8+0.76+8) |
300~720 |
最大2.1 |
上部、下部及 一边固定 |
|
10 (6+0.76+4) (5+0.76+5) |
300~870 |
最大2.1 |
所有边固定 |
|
|
注:对于玻璃的三边或四边固定的侧面与其他部件刚性连接的情况,表中所列数值也适用。 |
||||
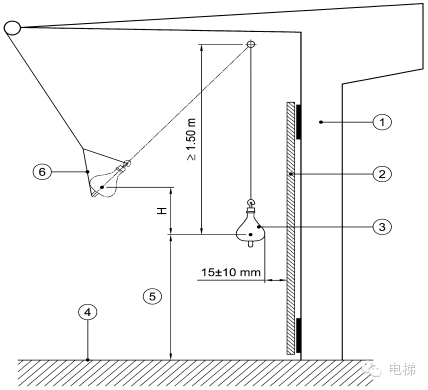
图中:
H—— 跌落高度;
①—— 框架;
②—— 被测试的玻璃面板;
③—— 冲击装置;
④—— 被测试玻璃面板的参考地平面;
⑤—— 撞击点高度为1m,对于层门,该高度值见7.2.3.8;
⑥—— J2.4所述的三角钩结构。
图J3 测试装置的跌落高度
印送:各省、自治区、直辖市质量技术监督局,总局各直属检验检疫局,国务院各有关部门、行业协会、集团公司,总局各司(局)、直属
挂靠单位,全国各直属标准化技术委员会。
国家标准化管理委员会办公室 2015年7月27日印发
文章推荐:
(2)IC卡和ID卡的区别




